Стоимость строительства от 39 тыс. рублей кв.м. не является публичной офертой.
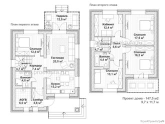
Хорошая планировка дома с тремя спальнями на втором этаже и одной спальней на первом. Раздельная гостиная - 20,5 кв.м., кухня - 13,2 кв.м., собственная котельная в доме. Спальная комната на втором этаже с выходом на балкон.
Материал несущих стен в данном проекте керамзитоблок. По желанию заказчика возможно заменить на полнотелый кирпич, керамический блок порикам или газоблок, пеноблок.
Облицовка - одинарный кирпич, баварская кладка, возможны и другие расцветки.
Варианты материалов стен:
1. Кирпич+ утеплитель+облицовочный кирпич.
2. Газоблок (пеноблок) +облицовочный кирпич.
3. Керамический блок+облицовочный кирпич.
4. Керамический блок+штукатурка.
5. Керамзитоблок+утеплитель+штукатурка.
Возможна перепланировка по вашему пожеланию. Если вы не нашли на нашем сайте тот проект который хотели, то мы вам его спроектируем индивидуально. Тел архитектора 8(927)236-87-17.