Стоимость строительства от 39 тыс. рублей кв.м. не является публичной офертой.
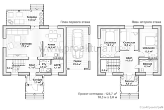
Дом спроектирован для семьи из 4-7 человек. На первом этаже расположены тамбур - 3,5 кв.м, холл - 4,7 кв.м, гостиная - 27 кв.м с выходом на террасу - 14,8 кв.м. Просторная кухня 14,9 кв.м, с/у и котельная. На втором этаже холл, большая ванная комната - 6,3 кв.м и три спальни.
Варианты материалов стен:
1. Газоблок (пеноблок) +облицовочный кирпич.
2. Керамический блок+облицовочный кирпич.
3. Керамический блок+штукатурка.
4. Керамзитоблок+утеплитель+штукатурка.
Возможна перепланировка по вашему пожеланию. Если вы не нашли на нашем сайте тот проект который хотели, то мы вам его спроектируем индивидуально. Тел архитектора 8(927)236-87-17.